Thiết kế chung cư phong cách hiện đại Huyndai Hillstate
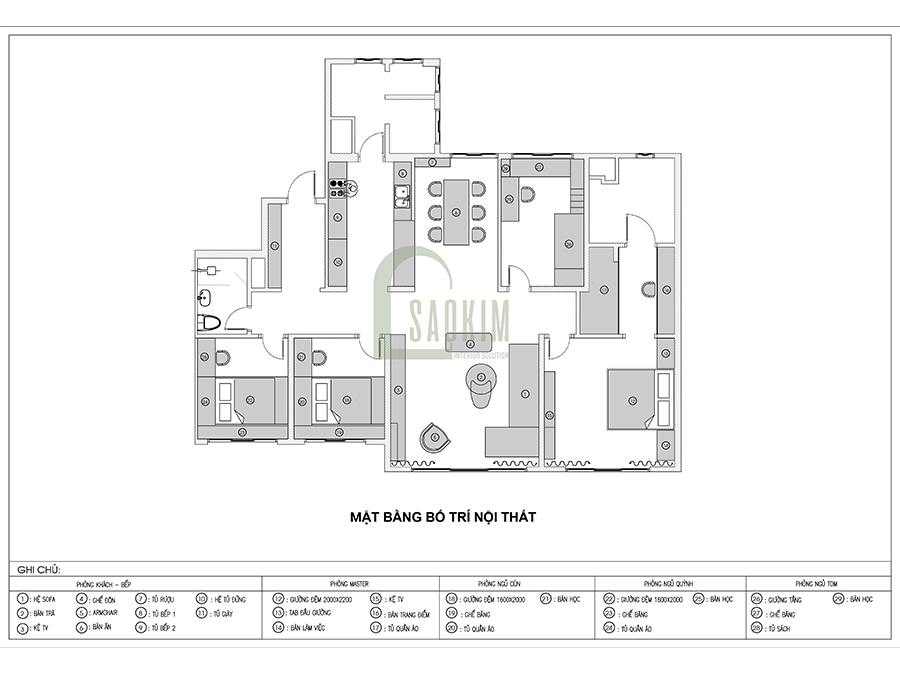
Diện tích: 172 m2
Địa chỉ: Đường Tô Hiệu, Hà Cầu, quận Hà Đông, Hà Nội
Đơn vị thi công: Công ty TNHH giải pháp nội thất Sao Kim
Khi thế giới biến động ta mới rõ nơi bình yên nhất là nhà.


Màu sắc được sử dụng trong thiết kế nội thất chung cư hiện đại là màu trắng, nâu, xám được sử dụng kết hợp với những chi tiết sáng tạo lên sự tương phản qua đó làm tôn lên vẻ sang trọng, phóng khoáng đúng chất hiện đại. Ghế sofa chữ L sử dụng tận dụng triệt để diện tích phòng khách. Kế đó còn bố trí thêm 1 ghế băng gam màu nâu cam bọc nỉ êm ái vừa tạo điểm nhấn cho phòng khách, vừa tạo thêm chỗ ngồi cho các thành viên trong nhà hoặc khách đến chơi.
Vách sau sofa kế hợp ốp gỗ, đá và sử dụng chi tiết trang trí tô điểm cho không gian phòng khách.

Bàn trà đôi thiết kế độc đáo tạo cái nhìn mới lạ cho thiết kế phòng khách chung cư hiện đại. Vách tivi sử dụng nan ốp gỗ kết hợp với đá ốp càng làm tăng thêm vẻ sang trọng cho không gian thiết kế chung cư phong cách hiện đại.


Đối diện không gian phòng khách là khu vực bàn ăn. Thiết kế chung cư phong cách hiện đại kết hợp với màu trắng, đên và điểm nhấn đếm từ sắc cam mang đến cho phòng ăn vẻ đẹp cuốn hút và tươi mới.

Những vật liệu như kim loại, gỗ, đá được ứng dụng linh hoạt không hề gò bó trong không gian phòng ăn này. Những vật liệu này làm cho thiết kế nội thất chung cư theo phong cách hiện đại toát lên vẻ đẹp sang trọng, tinh tế, hiện đại mà không một phong cách thiết kế nào có được,

Một tủ rượu được bố trí ngay gần bàn ăn tạo sự thuận tiện trong sinh hoạt của ra đình.
Khu bếp và phòng ăn được ngăn cách bởi một bức vách nhở và quầy bar. Cách thiết kế này vừa giúp tạo không gian riêng, tối ưu căn bếp nhưng vẫn đảm bảo sự thông thoáng cho thiết kế chung cư phong cách hiện đại. Quầy bar sẽ là nơi lý tưởng để các thành viên ngồi dùng bữa ăn nhẹ, uống nước ép, cocktail,…

Thiết kế chung cư phong cách hiện đại rất chú ý đến công năng cho mỗi không gian trong căn hộ trong đó có phòng bếp. Sự hài hòa giữa căn bếp và những không gian khác cũng được kiến trúc sư hết sức trú trọng. Hệ tủ bếp với ngăn kéo, giá trượt, ngăn tủ lớn kết hợp với phụ kiện bếp thông minh giúp tối ưu hóa không gian sử dụng, giúp bếp luôn sạch sẽ, gọn gàng.

Sự phối hợp màu tủ bếp thiết kế không tay cầm cùng đá ốp và đèn led làm căn bếp trở nên lung linh, thu hút khiến ai cũng muốn vào bếp.


Cách bố trí không gian tinh tế, đầy nghệ thuật và vẻ đẹp của những món đồ nội thất cao cấp đã tạo nên một không gian phòng ngủ tiện nghi, ấm cùng và vô cùng sang trọng. Thiết kế phòng ngủ chú trọng đến sự hài hòa của màu sắc cũng như tính năng của vật dụng trong không gian như giường, tủ quần áo, bàn làm việc hay rèm cửa,… ánh sáng để tạo lên cho chủ nhân không gian nghỉ ngơi thực sự và những giấc ngủ ngon.

Phòng ngủ master đồng nhất và tạo sự kết nối với những không gian còn lại trong thiết kế chung cư phong cách hiện đại.

Phần vách ti vi ốp đá vân mây, phía dưới ốp nan gỗ cùng đèn led tăng thêm vẻ sang trọng cho thiết kế. Ngoài kệ tivi, kiến trúc sư còn bố trí thêm kệ đa năng cho chủ nhân căn phòng bày đồ trang trí hoặc lưu trữ đồ dùng.

Tủ quần áo và bàn trang điểm bố trí trong không gian riêng biệt. Đây chắc hẳn sẽ là không gian mơ ước của rất nhiều cô gái. Đối diện bàn trang điểm còn được bố trí một tủ quần áo lớn đảm bảo không gian lưu trữ cho chủ nhân căn phòng.

Phòng ngủ cho hai bé trai sử dụng hệ giường tầng để mỗi bé có một không gian nghỉ ngơi riêng. Hai bé đều rất thích siêu nhân Superman nên phòng ngủ được thiết kế với nhiều dấu ấn, hình ảnh, màu sắc đậm dấu ấn Superman.

Bé trai chắc chắn sẽ thích mê không gian phòng ngủ này. Ngoài không gian nghỉ ngơi kiến trúc sư cũng khéo léo bố trí khoảng không gian học tập, vui chơi cho bé.

Góc học tập của bé được thiết kế gọn gàng, tiện nghi đảm bảo yêu cầu học tập tại nhà.

Ánh sáng tự nhiên ngập tràn không gian phòng ngủ rất tốt cho sự phát triển của các bé.

Phòng ngủ cho bé có diện tích khá nhỏ, nhưng dưới bàn tay tài hoa của kiến trúc sư căn phòng vẫn có đầy đủ đồ nội thất đáp ứng yêu cầu sử dụng và vẫn mang chất riêng của nó.

Phương án sử dụng hệ tủ liền giường giúp tói ưu không gian cũng như đảm bảo mặt thẩm mỹ cho không gian thiết kế. Một bục đọc sách nhỏ bố trí chạy dọc cửa sổ.

Phòng ngủ này được bố trí khá giống với phòng ngủ ở trên, tuy nhiên một số đồ nội thất được thay đổi thiết kế, màu sắc để tạo điển nhấn riêng cho phòng ngủ.
