Sửa trang
THIẾT KẾ NỘI THẤT CHUNG CƯ

Thiết Kế Nội Thất Chung Cư 85m2 Moon Tower Tây Hồ Residence Mang Vẻ Đẹp Sang Trọng

7/4/2025 11:09:32 PM
5/5 - (0 Bình chọn )

Thiết kế nội thất chung cư 85m2 2 phòng ngủ Moon Tower thuộc dự án Tây Hồ Residence theo phong cách hiện đại

Diện tích: 85m2

Địa chỉ: Dự án Tây Hồ Residence, Đường Võ Chí ng, Phường Xuân La, Tây Hồ, Hà Nội

Đơn vị thi ng: Công ty TNHH giải pháp nội thất Sao Kim

Giãn cách + làm việc Online có lẽ là khoảng thời gian vàng để các Designer có thể nhìn nhận, đúc kết và sáng tạo mang tinh hoa vào các dự án thiết kế nội thất đã và đang thực hiện. Mọi thứ đều có thể trở nên tốt đẹp nếu cả gia chủ và Designer dành nhiều thời gian hơn để quan tâm và gắn bó. Thiết kế nội thất chung cư 85m2 Moon Tower Tây Hồ Residence được hoàn thiện ngay trong thời gian Hà Nội giãn cách xã hội vì dịch bệnh COVID 19. Chung cư 85m2 2 phòng ngủ lựa chọn phong cách thiết kế nội thất hiện đại, thổi vào không gian sống một luồng gió mới.

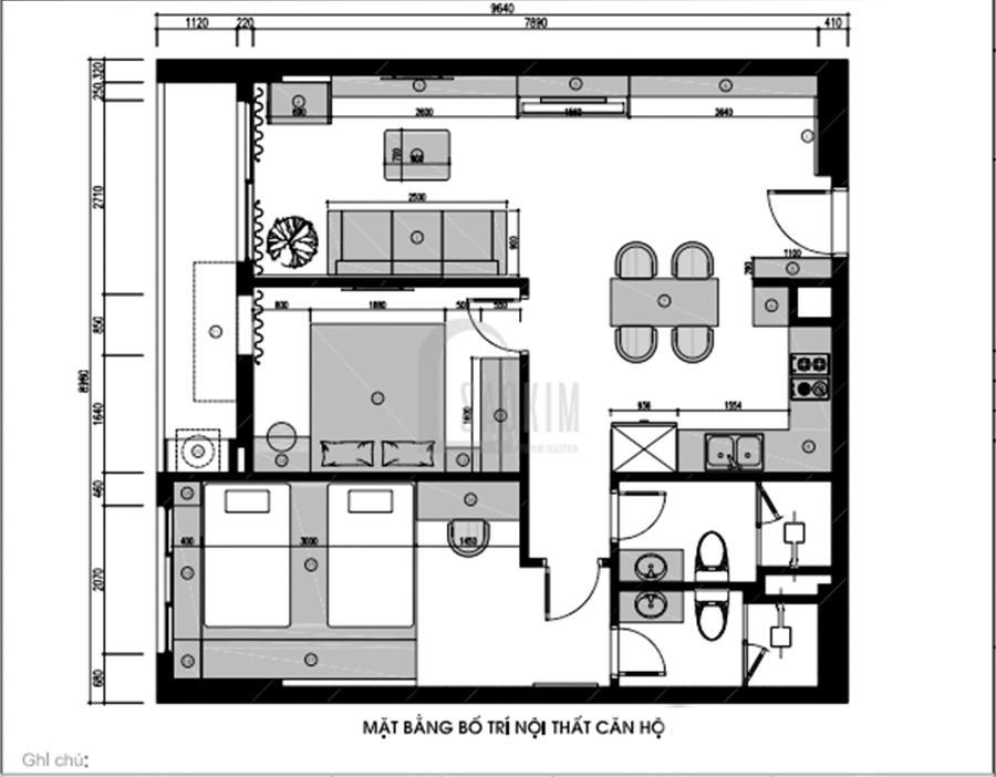
Mặt bằng bố trí nội thất chung cư 85m2 2 phòng ngủ Moon Tower Tây Hồ Residence

Thiết kế nội thất không gian sinh hoạt chung

Thiết kế nội thất phòng khách chung cư 85m2

Thiết kế nội thất chung cư 85m2 Moon Tower Tây Hồ Residence mang vẻ đẹp sang trọng

Bước chân đến phòng khách sẽ cảm nhận được ngay vẻ đẹp hiện đại, tinh tế nhưng vô cùng sang trọng. Gam màu sắc xám, trắng làm chủ đạo, kết hợp màu nâu gỗ và màu nhấn là màu đỏ đô mang đến phòng khách vẻ đẹp độc lạ.

Thiết kế nội thất phòng khách chung cư 85m2 2 phòng ngủ Moon Tower Tây Hồ Residence theo phong cách hiện đại

Thiết kế chung cư 85m2 kết hợp hài hoằ giữa ánh sáng, màu sắc giúp không gian như được cơi nới rộng rãi, thoáng mát hơn.

Thiết kế nội thất phòng khách chung cư 85m2 2 phòng ngủ Moon Tower Tây Hồ Residence mang vẻ đẹp hiện đại, sang trọng

Vách ốp tivi được kết hợp giữa nan gỗ và đá càng làm tăng lên vẻ đẹp sang trọng của phòng khách. Ban thờ đứng được bố trí sát cửa ban công, sử dụng gỗ đồng nhất với màu gỗ của đồ nội thất khác, qua đó tạo sự đồng nhất trong không gian.

Thiết kế nội thất chung cư 85m2 Moon Tower Tây Hồ Residence đầy tiện nghi nhờ phong cách nội thất hiện đại

Tủ giày đa năng được kiến trúc sư khéo léo bố trí sát cửa chính.

Thiết kế nội thất chung cư 85m2 Moon Tower Tây Hồ Residence lựa chọn không gian mở cho khu vực phòng khách, bàn, phòng ăn

Căn hộ thông thoáng và mát mẻ nhờ việc lựa chọn không gian thiết kế mở. Mỗi khu vực trong thiết kế nội thất chung cư 85m2 đều được bố trí phù hợp với công năng sử dụng và diện tích. Tất cả tạo nên một không gian nội thất tuyệt vời cho các thành viên trong căn hộ.

Thiết kế phòng ăn và bếp

Thiết kế chung cư 85m2 2 phòng ngủ Moon Tower Tây Hồ Residence lựa chọn không gian mở cho khu vực phòng khách, bếp, phòng ăn

Thiết kế nội thất chung cư 85m2 2 phòng ngủ không chỉ mang vẻ đẹp tổng thể sinh động, hài hòa mà mỗi chi tiết nhỏ đều được kiến trúc sư cân nhắc kỹ lưỡng, chú trọng tô điểm. Bộ đàn Piano được đặt ngay tại phòng khách để bé có thể luyện tập học đàn, cũng có thể biểu diễn cho cả nhà lắng nghe ngay tại đây. Kế đó là tủ kệ trang trí đẹp mắt với các ngăn dạng nan gỗ. Đèn led được lắp ở các ngăn kệ giúp làm nổi bật món đồ trang trí tại đây.

Thiết kế nội thất phòng bếp ăn chung cư 85m2 Moon Tower Tây Hồ Residence với điểm nhấn là bộ ghế ăn đỏ đô

Căn bếp ăn với màu chủ đạo là màu trắng. Để tạo điểm nhấn cho nới đây, kiến trúc sư đã lựa chọn ghế ăn bọc nỉ màu đỏ đô.

Thiết kế nội thất phòng bếp ăn chung cư 85m2 Moon Tower Tây Hồ Residence với gam màu trắng làm chủ đạo

Khu bếp nấu căn được trang hoàng gam màu trắng làm cho không gian này mang vẻ đẹp trang nhã, sạch sẽ. Vật liệu như đá vân mây, tủ bếp phủ acrylic bóng gương không bám bẩn, vệ sinh dễ dàng. Nhờ đó mà gia chủ không cần lo lắng màu trắng sẽ bị lộ vết bẩn.

Phòng ngủ – thiết kế nội thất chung cư 85m2

Thiết kế nội thất phòng ngủ master chung cư 85m2

Thiết kế nội thất phòng ngủ master chung cư 85m2 Moon Tower Tây Hồ Residence sử dụng gam màu xám làm chủ đạo

Thiết kế nội thất chung cư 85m2 2 phòng ngủ lựa chọn gam màu xám làm chủ đạo cho phòng ngủ master tạo nên sự ấm cúng, gần gũi, sang trọng cho không gian nghỉ ngơi. Gam màu đỏ đô được lựa chọn làm điểm nhấm cho phòng ngủ master. Gam màu sắc được sử dụng tại phòng ngủ tương đồng gam màu của phòng khách tạo sự kết nối cho thiết kế chung cư 85m2.

Thiết kế nội thất phòng ngủ master chung cư 85m2 Moon Tower Tây Hồ Residence theo phong cách hiện đại

Dù có diện tích khá nhỏ nhưng với phong cách thiết kế hiện đại căn phòng vẫn đầy đủ tiện ghi và vô cùng rộng thoáng.

Thiết kế nội thất phòng ngủ chung cư cho bé

Thiết kế nội thất phòng ngủ chung cư cho bé - Moon Tower Tây Hồ Residence lựa chọn gam màu xanh pastel làm điểm nhấn

Thiết kế nội thất chung cư 85m2 này lựa chọn gam màu tươi sáng cho phòng ngủ của các bé. Đồ nội thất kết hợp giữa màu gỗ tự nhiên và màu trăng được lựa chọn tạo không gian ấm cúng và sạch.

Thiết kế nội thất phòng ngủ chung cư cho bé - Moon Tower Tây Hồ Residence với hệ tủ liền giường

Hệ tủ liền giường được sử dụng giúp tối ưu không gian.

Thiết kế nội thất phòng ngủ chung cư cho hai bé - Moon Tower Tây Hồ Residence với giường đôi cho 2 bé

Giường thiết kế rộng đặt được 2 đệm đơn cho hai bé vẫn có không gian riêng. Vách đầu giường ốp gỗ và một phần tường sơn nhấn màu xanh pastel mang đến cảm giác thư thái, dễ chịu cho giấc ngủ.

Thiết kế nội thất phòng ngủ chung cư cho hai bé - Moon Tower Tây Hồ Residence bố trí bàn đọc sách nhỏ cạnh cửa sổ

Thiết kế nội thất chung cư 85m2 bố trí một bàn đọc sách nhỏ chạy dọc cửa sổ. Đây sẽ là nơi lý tường để hai bé thỏa sức đọc sách, chơi đùa, nghe nhạc và ngắm cảnh bên ngoài cửa sổ.

Thiết kế Logia chung cư

Thiết kế logia chung cư Moon Tower Tây Hồ Residence

Logia được bố trí kệ gỗ chắc chắn với ngăn để máy giặt và ngăn chứa đồ giúp nơi đây luôn gọn gàng, sạch sẽ.

admin

 

Liên hệ với chúng tôi
*
*
*
Đăng Ký
Facebook
Chat Zalo