Diện tích: 157m2
Địa chỉ: Đường số 2 Gamuda Garden, Trần Phú, Hoàng Mai, Hà Nội
Đơn vị thi công: Công ty TNHH giải pháp nội thất Sao Kim
Thiết kế nội thất phong cách Wabi Sabi được gia chủ yêu thích và lựa chọn cho không gian sống của gia đình trong căn hộ The Zen Gamuda 157m2. Giữa nhịp sống hiện đại luôn chú trọng vào vẻ ngoài chải chuốt và hào nhoáng, lựa chọn phong cách thiết kế Wabi Sabi như một liệu pháp hướng tinh thần con người về với tự nhiên trong chính không gian sống của họ.

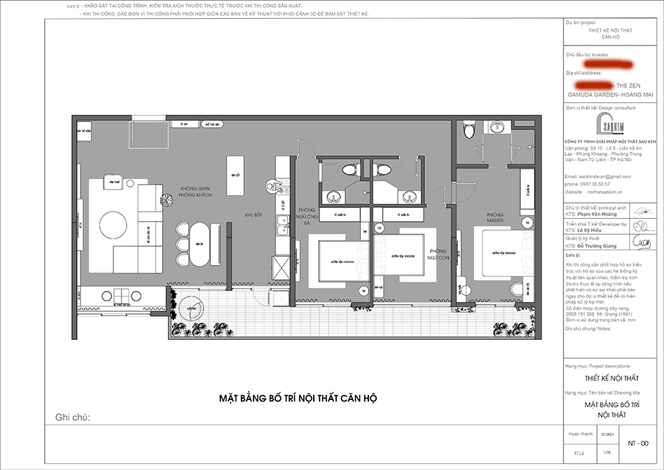
Bản vẽ mặt bằng bố trí nội thất được kiến trúc sư của Nội thất Sao Kim bố trí dựa trên hiện trạng căn hộ và yêu cầu sử dụng nội thất của các thành viên trong gia đình.

Phong cách Wabi Sabi là phong cách nổi bật và riêng biệt của người Nhật. Phong cách thiết kế Wabi Sabi là sự tinh tế, tĩnh lặng và không hề phô trương, dề cao tính thô sơ, mộc mạc của vẻ đẹp tự nhiên. Nó mang đến cho phòng khách căn hộ vẻ đẹp trong những khiếm khuyết hiện ra theo từng năm tháng, một nét đẹp vô thường, tồn tại vĩnh cửu theo thời gian.

Thiết kế nội thất phòng khách giữ nguyên bản của vật liệu làm bàn trà và một số đồ vật khác trong không gian. Màu sắc, vật liệu thô mộc được kết hợp có chủ đích và sắp xếp để tạo nên sự kết nối với nhau chặt chẽ nhưng vẫn có nhịn điệu lạ mắt.
--> Xem thêm: Thiết kế căn nhà nhỏ 58m2 ở Hà Nam theo phong cách Wabi Sabi để tận hưởng kỳ nghỉ cuối tuần

Gam màu của gỗ màu bê tông giữ nguyên bản thể hiện vẻ đẹp mộc mạc, thô sơ tự nhiên. Thiết kế phòng khách phong cách Wabi Sabi mạng lại cảm giác bình yên, thanh thản, cùng sự cân bằng trong vạn vật không bằng phẳng nhờ kết hợp những tông màu trầm lặng, không lòe loẹt sôi nổi. Gam màu trung tính như: xám, trắng được sử dụng làm màu bổ trợ để tạo nên một tổng thể không gian hài hòa hơn.

Vách tường kệ tivi và 2 vách kệ trang trí cạnh đó được làm vách cong nhám bê tông được sử lý ở mức độ nhất định để giữ nguyên được tính chất ban đầu của nó.

Cạnh cửa kính lớn được bố trí bàn trà, không gian trà đạo thu nhỏ theo phong cách Nhật để gia chủ có thể ngồi thưởng trà, ngắm cảnh thành phố.

Ban thờ đứng nhỏ gọn có vách ngăn bằng gỗ bố trí sát tường.

Tủ giày nhỏ gọn đặt cạnh cửa ra vào, một chiếc ghế ngồi thây giày đặt sát kệ.

Không gian bàn ăn và phòng khách mở với bếp tạo khu sinh hoạt chung rộng thoáng, thuận tiện cho sinh hoạt. Ánh sáng tự nhiên được tận dụng triệt để trong thiết kế, đó cũng là một trong những yếu tố vô hình liên kết mọi thứ trong không gian căn hộ lại với nhau.
Bộ bàn ăn lớn đặt ngay sau ghế sofa mang thiết kế độc đáo, được gia chủ đặc biệt ưa thích.

Một bên bàn ăn được bố trí ghế đơn, bên còn lại bố trí ghế băng dài.

Đi về phía sau vách tường và bàn đảo là bếp nấu ăn mang đậm phong cách thiết kế Wabi Sabi.

Toàn bộ bàn đảo ốp gỗ dạng nan với mặt bàn đảo làm bằng gỗ tự nhiên. Đây sẽ là nơi các thành viên dùng bữa ăn nhẹ hoặc thường thức nước ép, sinh tố,… Phía sau bàn đảo là bếp nấu ăn với toàn bộ tủ dưới bằng gỗ nâu, kiến trúc sư khéo léo cải thêm màu trắng sữa của tủ bếp trên và đá ốp bếp để tạo nên vẻ đẹp tinh khôi cho căn bếp.

Các gam màu sắc và vật liệu mang lại cảm giác cuốn hút, thích thú mỗi khi bước chân đến căn bếp.

Không gian phòng ngủ master đậm chất phong cách Wabi Sabi với phần vách đầu giường nhám bê tông và đồ nội thất màu gỗ tạo sự liên kết với phòng khách. Những món đồ nội thất đều được bố trí khéo léo, đảm bảo yêu cầu sử dụng nội thất của gia chủ.
--> Xem thêm: Mẫu thiết kế nội thất phòng ngủ Master đẹp phong cách Wabi Sabi

Một bộ bàn ghế làm việc và kệ sách nhỏ bố trí vừa một người làm, tận dụng ánh sáng tự nhiên để bảo vệ đôi mắt.

Ánh sáng, màu sắc hài hòa tạo cảm giác dễ chịu, bình yên cho không gian phòng ngủ master phong cách nội thất Wabi Sabi.

Màu gỗ tạo cảm giác ấm cúng, dễ chịu cho phòng ngủ master.

Bàn trang điểm nhỏ cũng là bàn làm việc của nữ chủ nhân căn hộ được bố trí phía cuối giường. Kế đó là kệ tivi thiết kế đơn giản để đặt đồ cần thiết.

Phòng tắm của phòng ngủ master bố trí đơn giản với đầy đủ đồ cần thiết. Thiết kế mang đến cảm giác nhẹ nhàng, dễ chịu.

Phòng ngủ của bé vẫn mang những gam màu nội thất quen thuộc để tạo sự kết nối với không gian khác. Tuy nhiên màu hồng pastel nhẹ nhàng đã được thêm vào không gian thiết kế để tạo nên sự xinh xắn, gam màu sắc mới mẻ khiến bé thích thú. Một vài chi tiết trang trí trên tường như mây, trăng, sao được thêm vào để tạo sự xinh động.

Ánh sáng tự nhiên luôn ngập tràn trong phòng để đảm bảo sự phát triển tốt nhất cho bé.

Tủ quần áo lớn kết hợp kệ trang trí bố vô cùng tiện lợi đặt sát tường.

Góc học tập nhỏ xinh cho bé được bố trí ngăn nắp, gọn gàng.

Vẫn là những gam màu được sử dụng xuyên suốt các không gian thiết kế của căn hộ chung cư nhưng phòng ngủ này vẫn mang chất riêng của nó.

Mỗi món đồ nội thất trong căn phòng đều được lựa chọn một cách tỉ mỉ để đảm bảo yêu cầu sử dụng và sở thích của chủ nhận.

Căn hộ có khoảng không logia cực rộng thoáng chạy dài từ phòng khách đến bếp, phòng ăn và 3 phòng ngủ mà ít căn hộ chung cư có được. Kiến trúc sư của Nội thất Sao Kim đã hô biến nơi đây thành khu vườn nhỏ với đầy cây xanh. Bộ bàn tràn, võng ngồi được bố trí ở đây để các ngày viên có thể ra đây ngồi thư giãn, ngắm cảnh.

Cây xanh đặt chạy dọc khu vực logia của căn hộ.

Máy giặt và máy sấy quần áo được đặt gọn gàng trên hệ kệ chắc chắn ngoài logia.